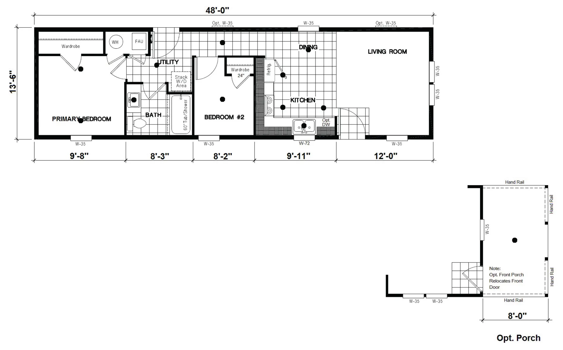
DRM481M 48' DREAM
Features
Floor Plan
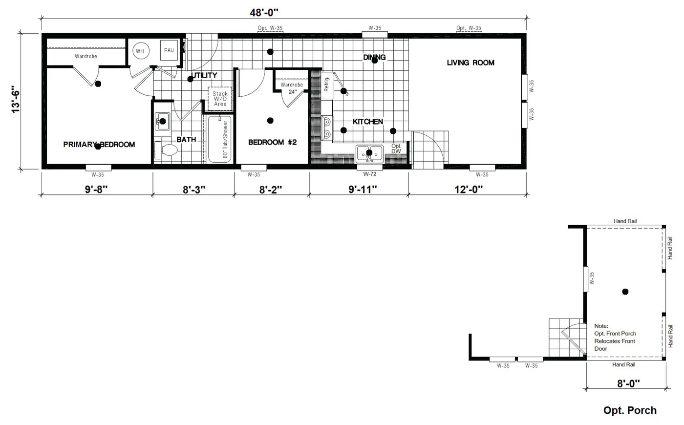
DRM481M 48' Dream
BEFORE OPTIONS
DRM481M 48' DREAM
Features
Floor Plan
BEFORE OPTIONS
Breakfast Bar
Kitchen Island
Open Floor Plan
Split Bedrooms

We accept trades!
Find a new home you love? Contact us for more information about our trade-in requirements and to schedule your free trade evaluation.
Learn More












Take 3D Tour
†Images may show options not included in base price
Schedule A Visit
†Advertised starting sales prices are for the home only. Delivery and installation costs are not included unless otherwise stated. Starting prices shown on this website are subject to change, see your local Home Center for current and specific home and pricing information. Sales price does not include other costs such as taxes, title fees, insurance premiums, filing or recording fees, land or improvements to the land, optional home features, optional delivery or installation services, wheels and axles, community or homeowner association fees, or any other items not shown on your Sales Agreement, Retailer Closing Agreement and related documents (your SA/RCA). If you purchase a home, your SA/RCA will show the details of your purchase. Homes available at the advertised sales price will vary by retailer and state. Artists’ renderings of homes are only representations and actual home may vary. Floor plan dimensions are approximate and based on length and width measurements from exterior wall to exterior wall. We invest in continuous product and process improvement. All home series, floor plans, specifications, dimensions, features, materials, and availability shown on this website are subject to change.
© 1998-2026 Clayton. All rights reserved.
Find Your Perfect Home